Mieszkanie w stylu Street Art

Jak to urządzić?

Ona - miłośniczka książek. On - zafascynowany sztuką uliczną. Cisza i miejski ruch to tylko na pozór niemożliwe połączenie - zwłaszcza gdy mówimy o aranżacji przestrzeni, w której zamieszkali. 3-pokojowe mieszkanie w Gdańku to połączenie przytulnej, choć otwartej, strefy "dobrej lektury", z awangardowym street artem: urok współczesnego dizajnu i umiar w minimalistycznym stylu.

Właściciele 60-metrowego mieszkania na gdańskim osiedlu Wiszące Ogrody postawili przed projektantami wnętrz dość trudne zadanie. Bo jak połączyć tak różne temperamenty, potrzeby i pasje nowych lokatorów? Ale jak twierdzą zaprawieni w boju eksperci, nie ma takiej przestrzeni, której nie da się zaaranżować zgodnie z potrzebami jej mieszkańców.

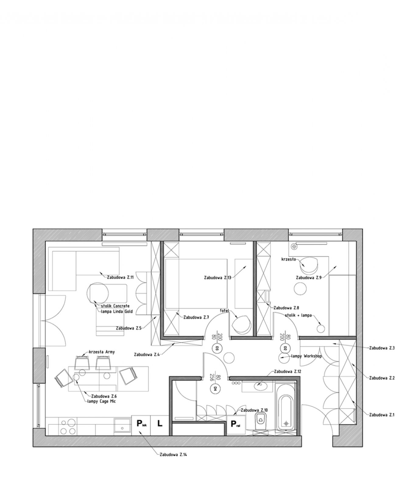
Główną część mieszkania tworzy otwarta przestrzeń składająca się z kuchni i części wypoczynkowej. Pani domu to miłośniczka książek - związana jest z nimi zarówno duchowo, jak i zawodowo. I to właśnie jej pasja do lektury natchnęła projektantów, by "sercem" domu był olbrzmi, wysoki, umiejscowiony w centralnym punkcie mieszkania regał wypełniony książkami.

Ciekawym elementem dekoracyjnym są też tutaj graficzne motywy znaków poziomych, namalowanych na kuchennej betonowej posadzce. Inspiracją do jej stworzenia było z kolei  zamiłowanie właściciela do ulicznych artystów, takich jak m.in. Banksy. Dekoratorzy poszli dalej tym tropem i w stylu Street Art  zaprojektowali także łazienkę, w której dominują czarne meble, białe kafle oraz wyróżniające się płytki z kolorowym graffiti - ciekawie ułożone pod prysznicem. Dopełnieniem tego klimatu jest rzucający się w oczy żółty kinkiet.

Łącznikiem w mieszkaniu jest korytarz z przedsionkiem wejściowym, w którym znajdują się szafy na ubrania. Zastosowanie lustra na jednej z nich sprawia, że komunikacja wnętrza mieszkalnego wygląda jak fragment ulicy z przejściem dla pieszych oraz rozdrożem, optycznie także poszerza mieszkanie. Z korytarza wchodzi się do wszystkich pozostałych pomieszczeń, sypialni z drewnianą zabudową i łóżkiem składanym w szafę, oraz pokoju córki, w którym dominuje motyw żeglarski.

O najmłodszej domowniczce także nie zapomniano. Jej ciekawość świata odzwierciedla olbrzymia mapa umieszczona na ścianie. Bardzo sprytnym rozwiązaniem jest tu łóżko, które po rozłożeniu daje możliwość przenocowania dodatkowej osoby.

To, co na pewno udało się osiągnąć w tym mieszkaniu, to poczucie przestrzeni. Choć ma tylko 60 metrów kwadratowych, sprawia wrażenie znacznie większego. To dzięki kilku zabiegom, które w sprytny sposób gospodarują powierzchnię, jak chociażby meble, które zaprojektowano tak, by w zależności od potrzeb mogły zmieniać swoje gabaryty.

Jesteśmy pod wrażeniem projektu. A Wy?

www.studiopotorska.com

Tekst: Dorota Dziołak

Projekt mieszkania: Monika Potorska, Andrzej Kondratowicz, Anna Haśkiewicz

Zdjęcia: Tomirri Photography

Zwierciadła Kalendarz Zwierciadła Kalendarz