mieszkanie 36 m2 z sypialnią na antresoli

Urocza i stylowa kawalerka w warszawskiej kamienicy – jak urządzić mieszkanie 36 m2 z zapasową sypialnią na antresoli

Małe mieszkanie

To 36-metrowe mieszkanie w warszawskiej kamienicy jest urocze i stylowe. Malutka kawalerka ma zapasową sypialnię na antresoli, wiele pomysłów ułatwiających sprzątanie i dużo paryskiego czaru!

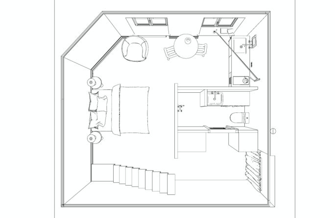
Mieszkanie ma 36 m2 i mieści się w starej warszawskiej kamienicy odbudowanej po zniszczeniach wojennych. Właścicielką jest młoda kobieta, zaprzyjaźniona z projektantką. Wysokie na 3,5 metra stropy pozwoliły na stworzenie w kawalerce dodatkowego miejsca do spania na antresoli. O tym, jak urządzić takie malutkie mieszkanie opowiedziała nam projektantka Nadia Mitłosz.
 

Widziałam zdjęcia tego mieszkania sprzed remontu. Trudno nie nazwać go totalnym…

My na to mówimy – wrzucić bombę i zrobić wszystko od nowa. Najważniejsze było zaprojektowanie łazienki, bo wcześniej jej rolę pełniła kabina prysznicowa wstawiona do… kuchni. I zrobić to tak, by zmieścić w niej jeszcze pralkę. Zmniejszyliśmy kuchnię i udało się.

Za to jest antresola nad całą łazienką i holem.

Wykorzystaliśmy wysokość mieszkania – 3,5 metra, by stworzyć dodatkowe miejsce do spania. Właścicielce zależało, żeby wejście na nią było wygodne, a nie strome czy po drabinie. Toczyłyśmy na ten temat długie dyskusje, bo jednak schody zabierają sporo miejsca. Te są więc niezbyt szerokie i bez poręczy.

Jak na projekt wnętrza wpłynął fakt, że jest to lokal na wynajem i to krótkoterminowy.

Po pierwsze, nie mamy tutaj w zasadzie salonu – jest mała kuchnia, minijadalnia ze specjalnie zaprojektowanym stolikiem i sypialnia z wygodnym dwuosobowym łóżkiem. Ale że „w zapasie” jest antresola, w każdej chwili można łóżko główne przenieść na górę, a w jego miejscu postawić salonową sofę. Na podłodze ułożyłam winylowe panele. Drewniana klepka wyglądałaby pewnie lepiej, ale byłaby mniej praktyczna. Po gościach trzeba sprzątać, podłoga myta jest codziennie, więc to ułatwia sprawę.

 

mieszkanie 36 m2 plan


Dalej zamiast klasycznych stolików nocnych mamy stołki – łatwiej je przesunąć, kiedy się sprząta. Nie ma też szafek, w których goście mogą zawsze coś zostawić i zapomnieć zabrać. Tutaj wszystko jest na wierzchu. To ułatwia pakowanie. W łazience duży blat wokół umywalki powstał z tego samego powodu. Kosmetyki goście mają zawsze na oku. Kuchnia jest nieduża, bo nikt tu specjalnie nie gotuje. Ale zawsze można dodać szafki wiszące, jeśli zajdzie taka potrzeba.

mieszkanie 36 m2 z sypialnią na antresoli plan


Udało się pani uniknąć wrażenia, że jesteśmy w hotelowym wnętrzu. To miejsce ma duszę.

Dzięki rozmaitym detalom, takim jak sztukaterie, wyszperany piękny żyrandol czy lustro z pchlego targu. Na ścianie wisi dzieło sztuki. To sprawia, że goście mogą poczuć się jak u siebie.

Ta kawalerka ma tylko 27 metrów, a wygląda jak elegancki apartament! Zobacz, jakie rozwiązania sprawdziły się w małym mieszkaniu

Aranżacja 36-metrowej kawalerki – jakie rozwiązania sprawdziły się w małym mieszkaniu:

1. Mały aneks kuchenny z blatem roboczym, płytą grzewczą i zlewem

Cała zabudowa tej małej kuchni wygląda jak elegancki mebel. Nawet na tej niedużej powierzchni udało się wygospodarować między zlewem a płytą grzewczą zlicowany z nią blat roboczy. Stolik wykonany został na zamówienie i pokryty mikrocementem, który jest bardziej odporny na mycie i szorowanie niż drewno.

2. Kaloryfery ukryte za dekoracyjną drewnianą kratką

Pod szerokimi parapetami, charakterystycznymi dla kamienic, znajdują się zwyczajne grzejniki. Architektka postanowiła je ukryć za dekoracyjną drewnianą kratką – to pomysł zaczerpnięty z angielskich domów, a przy okazji bardzo ekonomiczne rozwiązanie, które pozwoliło uniknąć kosztów wymiany kaloryferów na designerskie i pasujące do nowego wnętrza.

Zobacz też: 39-metrowa kawalerka z akcentami błękitu – to małe mieszkanie w Sopocie urządzono elegancko i praktycznie

3. Otwarta sypialnia i telewizor wiszący na ścianie

Telewizor wiszący na ścianie naprzeciwko łóżka to oszczędność miejsca – nie potrzeba już szafki rtv. W białym kuferku ukryty został dekoder oraz kable. Antresola mieści się nad holem i łazienką. Obniżyła wysokość holu, ale belki na suficie i angielska boazeria sprawiają, że jest stylowy i przytulny.

Łóżko w sypialni architektka Nadia Mitłosz złożyła z gotowej ramy i doprojektowała zagłówek, który uszyła jej mama. Całość zakrywa lniany lambrekin. Nad łóżkiem dzieło będące kolażem różnych tkanin, także autorstwa Nadii. Niezbyt szeroki szary pas koloru na ścianie wraz ze sztukaterią – wyglądający jak boazeria – sprawia, że wnętrze wydaje się optycznie jeszcze wyższe

4. Dodatkowa sypialnia na antresoli

Sypialnia na antresoli ma 135 cm wysokości. Pomalowana jest na biały kolor, który zaciera jej granice, dzięki czemu wydaje się bardziej przestronna. W zagłębieniu ściany zamontowano ledowe oświetlenie – w tak niskim pomieszczeniu żyrandol (nawet najmniejszy) by się nie sprawdził. Tonącą w bieli sypialnię ożywiają i ocieplają dwa akcenty: drewniany stołek, który pełni rolę nocnego stolika – łatwy do przesunięcia podczas sprzątania – oraz zieleń w doniczkach umieszczona wzdłuż barierki.

jak urządzić kawalerkę 36m2

5. Łazienka z ukrytą pralką

Zamiast szafki pod umywalkę zrobiono blat z mikrocementu. Pod blatem za zasłonką ukryto nietypowych rozmiarów pralkę (niższą niż standardowe). Baterie z krzyżykowymi gałkami wybrano, bo dodają wnętrzom szyku i są proste w obsłudze – to cenne w wynajmowanych lokalach.

Projekt wnętrza: Nadia Mitłosz
www.mitlosz.com, tel. 602 442 407
Instagram: @nadiamitlosz

Tekst: Beata Majchrowska
Zdjęcia: Anna Michałek dla Lwowska Studios
Stylizacja: Nadia Mitłosz 

Zwierciadła Kalendarz Zwierciadła Kalendarz