aranżacja 27-metrowej kawalerki

Ta kawalerka ma tylko 27 metrów, a wygląda jak elegancki apartament. Sprawdź, jakie rozwiązania sprawdziły się w małym mieszkaniu!

Małe mieszkanie

Obłe kształty, harmonijna kolorystyka, intrygujące dodatki i nietuzinkowe rozwiązania sprawiają, że ta zaledwie 27-metrowa kawalerka wygląda jak spory apartament.

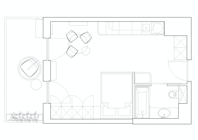
Małe mieszkanie ma zaledwie 27 m kw., mieści się w modnym apartamentowcu na warszawskim Mokotowie. Mieszka w nim młoda studentka. W tej nowoczesnej przestrzeni, inspirowanej klasycznymi wnętrzami i stylistyką lat 30. XX wieku, leitmotivem są łuki i zaokrąglenia. Pojawiają się w meblach, detalach, lustrach. W całym mieszkaniu dominują dwa kolory – beż i biel. W wielu elementach przewijają się też złocenia – lampy, baterie, uchwyty. Wszystko to sprawia, że wnętrze jest harmonijne i kojące. Łatwo się w nim zrelaksować. Więcej o jego aranżacji opowiedziała nam projektantka Agata Sobkowiak z pracowni Sobkowiak Architektura.
 

Kawalerka ma zaledwie 27 m2, a sprawia wrażenie wnętrza przestronnego, urządzonego z rozmachem. Co było największym wyzwaniem przy projektowaniu?

Zaaranżowanie na tak mikroskopijnej przestrzeni funkcjonalnej kuchni, dużej ilości miejsca do przechowywania oraz pełnowartościowego miejsca do spania, czyli nie rozkładanej sofy, ale właściwego łóżka z materacem. Największym wyzwaniem było oddzielenie tego łóżka od reszty mieszkania, tak aby nie było poczucia, że ono dominuje albo jest częścią strefy dziennej i cały czas jest na widoku. Z drugiej strony nie chcieliśmy grodzić tej maleńkiej przestrzeni – wydawałaby się jeszcze mniejsza. Zlikwidowaliśmy ścianki działowe, które zaproponował deweloper. Zostały tylko te wydzielające łazienkę. Łóżko oddzieliliśmy ruchomym parawanem, lekkim, który nie dochodzi do sufitu i jest składany, więc nie zajmuje miejsca.

Motyw łuku, zaokrąglenia przewija się w całym mieszkaniu. Skąd się wziął?

Z myślenia o niezagraceniu małej przestrzeni (ostre narożniki w mikrokawalerce są zbędne i niewygodne), a do tego chcieliśmy, by zaokrąglenia nadawały wnętrzu kobiecość, delikatność. Dlatego wybrałam okrągłe formy także w meblach i dodatkach.

Okrągłości pojawiają się nawet w meblach kuchennych, to nietypowe rozwiązanie.

Zaokrąglenia sprawiają, że meble, oprócz tego, że ciekawie wyglądają, są bardziej kompaktowe. Łatwiej poruszać się w tej małej przestrzeni, jeśli nie ma tzw. kolizyjnych narożników. Szafek wiszących nie poprowadziłam do samej ściany, dzięki czemu zabudowa wygląda finezyjnie niczym stylowy kredens.

mieszkanie 27 m2 plan


A jak z miejscem do przechowywania w tak malutkim, zaledwie 27-metrowym mieszkaniu?

Szafy po sam sufit (jedna w salonie, druga za lustrzanymi drzwiami) robią swoje. Wiadomo, że kobiety potrzebują zwykle dużo miejsca na ubrania, sprzęty, gadżety. W tak subtelnej przestrzeni wiele rzeczy na widoku mogłoby psuć cały efekt.

Gorący trend: łuki i obłości we wnętrzach – zobacz 10 pomysłów, jak zaaranżować je w domu i mieszkaniu

Aranżacja 27-metrowej kawalerki – jakie rozwiązania sprawdziły się w małym mieszkaniu:

1. Zaokrąglone meble w kuchni połączonej z jadalnią

Meble kuchenne przylegają do jednej ze ścian. Linia szafek wiszących jest krótsza niż stojących – daje to wrażenie lekkości i nie przytłacza niedużej przestrzeni. Wszystkie meble w mieszkaniu (z wyjątkiem stołu i krzeseł) oraz wybrane dodatki (np. kinkiety kuchenne) były projektowane oraz wykonywane na zamówienie.
 

2. Salon z miejscem do spania – sypialnia ukryta za parawanem

Łóżko częściowo zasłonięte jest składanym parawanem, co pozwala zachować intymność. Jest on częściowo przezierny – wypełniony tkaniną o gęstości pomiędzy zasłoną a firaną – przepuszcza światło. Parawan był wykonany na wymiar przez dwóch specjalistów. Elementy łukowate konstruowane są na zasadzie blejtramu – mają materiał naciągnięty na drewnianą ramę i zrobił je stolarz. Ruchomą konstrukcję, która musiała być jednocześnie stabilna, wykonał ślusarz.

Specjalnie zaprojektowano zagłówek łóżka – ma kształt półkolisty, dzięki czemu idealnie wpisuje się w przestrzeń. Dopasowano do niego tapetę z motywem delikatnych płatków kwiatowych.

Przeczytaj też: Jak urządzić 40-metrowe mieszkanie w bloku?


3. Wanna z prysznicem w małej łazience

Choć łazienka jest maleńka, właścicielka chciała mieć zarówno wannę, jak i prysznic – udało się je zmieścić, montując między wanną a umywalką szklaną ściankę. Umywalkę wpuszczono w blat ze spieku kwarcowego, na ścianach położono płytki gresowe wielkoformatowe z marmurowym wzorem połączone z małymi płytkami o wydłużonym kształcie. Tworzy to boazeryjny efekt.

Zobacz też: Mieszkanie w bloku urządzone na hiszpańską modłę – z artystycznym charakterem i kolorami jak z filmów Almodóvara

Projekt wnętrza: Agata Sobkowiak

Sobkowiak Architektura, tel. 500 164 534
mail: biuro@sobkowiakarchitektura.pl
Instagram: @sobkowiakarchitektura

Więcej zdjęć bardzo małego, 27-metrowego mieszkania zobaczysz w galerii

Tekst: Beata Majchrowska
Zdjęcia: Wiktoria Wasiak 

Zwierciadła Kalendarz Zwierciadła Kalendarz